2024년 9월 2일 서울잠실, LH 수서2(수서역세권 A2BL) 행복주택 서류대상자 발표가 있습니다.
서류대상자 및 당첨자 발표전 서울 잠실 행복주택과 수서 행복주택 평면도 위치도 조감도를 살펴보세요.
타입별 도면을 확인하시고 가전, 가구 배치하세요.
( ↑ 서류 제출 전, 당첨 계약 전 공고문을 숙지하시기 바랍니다.)
서울 잠실 행복주택 평면도 위치도 단지조감도 단지배치도
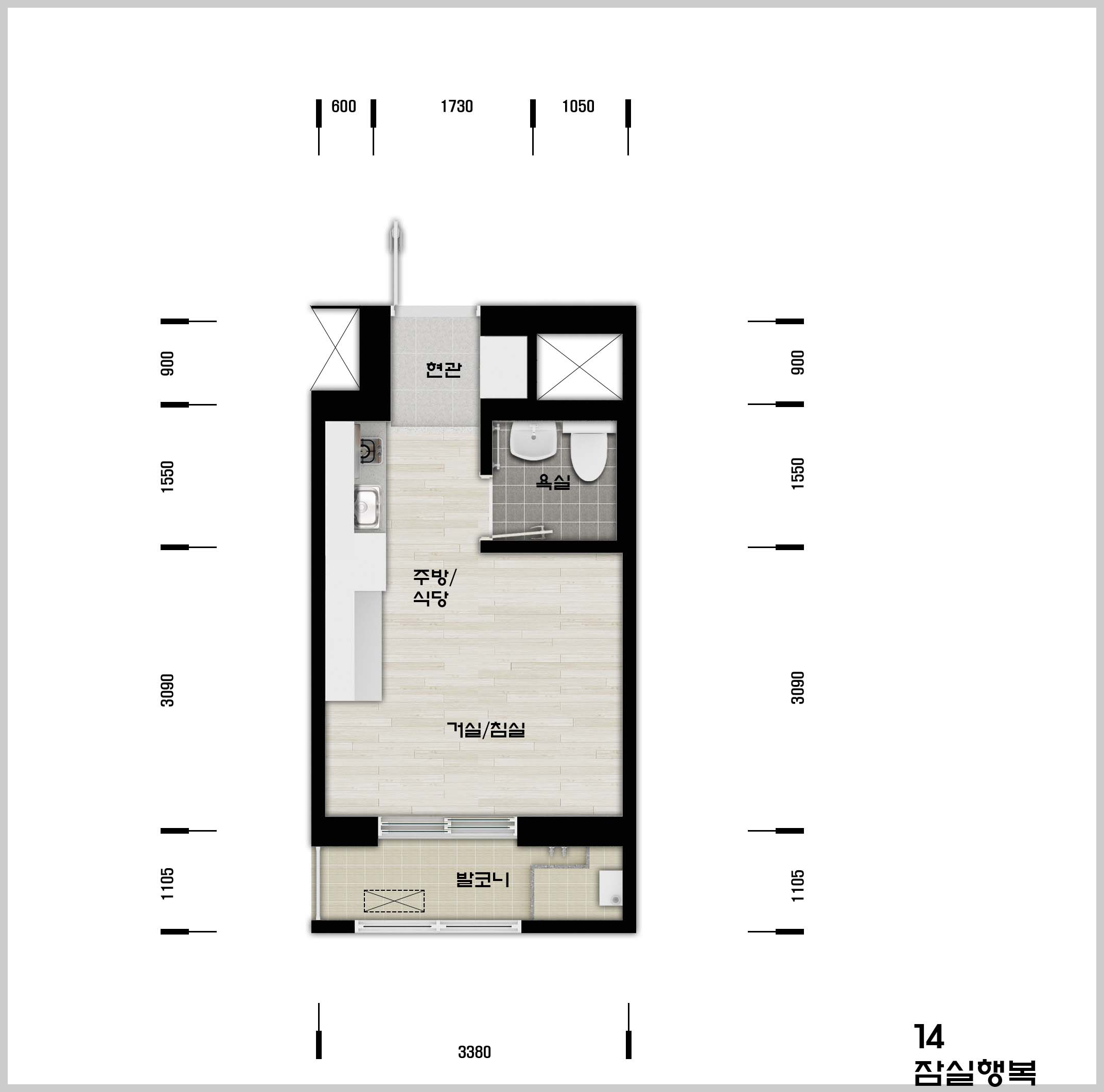
서울 잠실 행복주택 평면도
14A 대학생 청년 행복주택 평면도


서울 잠실 행복주택 위치도

서울 잠실 행복주택은 대학생과 청년을 대상으로 지원이 가능하며 최대 6년동안 거주할 수 있습니다.
공급타입은 14㎡A타입입니다.
지하철 2호선과 9호선 종합운동장역을 이용할 수 있는 더블 역세권이며 도보로 10분 거리에 위치해있습니다.
올림픽대로, 동부간선도로 등 이용하기에 편리한 위치입니다.
잠실역에 위치한 롯데월드타워, 롯데백화점과의 거리도 가까운 편이라 다양한 편의시설도 즐길 수 있습니다.
여가 생활하기에도 편리한 잠실종합운동장, 롯데월드 등 시설이 인접해 있습니다.
스타필드 강남, 삼성역 코엑스, 현대백화점을 이용하기에도 멀지 않습니다.
서울 잠실 행복주택 단지조감도

서울 잠실 행복주택 단지배치도


LH수서2 행복주택 평면도 지구조감도 단지조감도 단지배치도 동호배치도 전경사진
LH 수서2 행복주택 평면도
14A형 대학생 청년 평면도
14A형 대학생 청년 평면도
14A형 주거급여수급자


26A형 청년
26A형 주거급여수급자


26B형 고령자(주거약자)


36A형 청년/신혼부부·한부모가족
36A형 고령자


36B형 청년/신혼부부·한부모가족
36B형 고령자


44A형 신혼부부·한부모가족


44B형 신혼부부·한부모가족


44C형 신혼부부·한부모가족


LH 수서2 행복주택 지구조감도

LH 수서2 행복주택 단지조감도

LH 수서2 행복주택 단지배치도

LH 수서2 행복주택 동호배치도

LH 수서2 행복주택 전경사진

서울 수서 A2BL 행복주택 탬플릿, 조감도및평면도
(2024년 8월 14일 공고) 서울 수서 잠실 행복주택 신청결과 접수결과 경쟁률 서류제출 당첨자
서울 수서 잠실 행복주택 신청결과 접수결과 경쟁률 서류제출 당첨자
2024년 8월 14일 공고한 서울잠실, LH 수서2(수서역세권 A2BL) 행복주택 예비입주자 모집이 2024년 8월 28일 신청접수 마감하였습니다. 서울 잠실 LH 수서 행복주택 신청현황 및 경쟁률을 알려드리겠습
info.the-having.com
(2024년 8월 28일 접수결과) 구리 갈매A2 이스트힐 10년 공공임대주택 접수 마감 결과 서류제출 당첨자 확인방법
구리 갈매A2 이스트힐 10년 공공임대주택 접수 마감 결과 서류제출 당첨자 확인방법
2024년 8월 16일에 공고한 구리갈매 이스트힐 예비입주자 모집 1순위 청약 신청 마감됐습니다. 선순위 마감으로 2순위는 접수받지 않습니다. 당첨자 발표는 2024년 9월 9일 월요일 16:00 입니다.
info.the-having.com


